Você já se sentiu perdido ao tentar entender como ler a planta baixa de uma casa? É frustrante ver aquele monte de linhas e símbolos sem saber o que realmente significam, não é mesmo? Pois é, eu sei bem como é. Mas a boa notícia é que decifrar uma planta baixa não precisa ser um bicho de sete cabeças. Neste artigo, vou te mostrar os 3 erros comuns que te impedem de ler plantas com confiança e como você pode evitá-los, transformando desenhos técnicos em projetos claros e compreensíveis, já em 2026.
“Uma planta baixa é uma representação gráfica de um imóvel vista de cima, como se o teto fosse removido a uma altura de 1,5m do chão, detalhando paredes, aberturas, medidas e identificação de ambientes.”
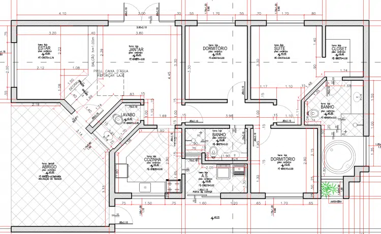
Entendendo os Símbolos Essenciais: O Primeiro Passo para Decifrar Como Ler a Planta Baixa de uma Casa
Vamos combinar, olhar para uma planta baixa e não entender nada é um pé no saco. Mas a chave está nos símbolos. Eles são um código visual que conta a história da construção.
Saber o que cada linha e forma representa é o que te permite visualizar o espaço real. É como aprender um novo idioma, o da arquitetura.
Compreender esses elementos básicos te dá a base para interpretar qualquer planta, seja para sua casa ou apenas para curiosidade.

Entendendo os Símbolos Essenciais da Planta Baixa
| Dificuldade: | Fácil a Moderada |
| Tempo Estimado: | 15-30 minutos |
| Materiais: | Planta baixa impressa ou digital, régua (opcional), lupa (opcional) |

O que você vai precisar
- Planta Baixa: O documento principal que você vai decifrar. Pode ser impressa ou em formato digital.
- Lupa (Opcional): Essencial para visualizar detalhes em plantas com muita informação ou com legendas pequenas.
- Régua (Opcional): Útil para medir distâncias e confirmar proporções, especialmente se a escala não estiver clara.
- Caneta/Lápis (Opcional): Para fazer anotações ou marcações na sua cópia, se permitido.

O Passo a Passo: Como Ler a Planta Baixa na Prática
- Identifique as Paredes: Comece pelas linhas contínuas. Linhas mais grossas ou preenchidas geralmente indicam paredes estruturais, a espinha dorsal da construção. Linhas mais finas podem ser divisórias internas. Preste atenção à espessura para entender a solidez de cada parede.
- Localize Pilares e Colunas: Procure por círculos ou quadrados pretos/hachurados. Estes são os pilares e colunas, os suportes que sustentam o peso da edificação. Saber onde estão ajuda a entender a estrutura e a identificar possíveis pontos de alteração estrutural. Saiba mais sobre a representação de colunas.
- Entenda Portas e Janelas: Portas são vãos na parede com uma linha reta (a folha) e um arco indicando o sentido e o espaço de abertura. Janelas aparecem como conjuntos de linhas dentro de um vão na parede. Linhas pontilhadas podem sinalizar janelas mais altas. Veja como janelas são representadas.
- Decifre as Cotas: São os números que indicam as medidas exatas de cada ambiente, geralmente comprimento e largura. Eles aparecem sobre linhas finas com setas ou traços. São cruciais para saber o tamanho real dos espaços.
- Compreenda a Escala: A escala mostra a proporção entre o desenho e a realidade. Uma escala comum é 1:50, o que significa que 1 centímetro no papel equivale a 50 centímetros na vida real. Geralmente, a escala está indicada em uma legenda. Entenda a escala em plantas baixas.
- Verifique o Nível: Símbolos como um círculo com cruz ou triângulo indicam a altura do piso em relação a um ponto de referência. Isso é importante para entender desníveis ou acabamentos em diferentes áreas. Símbolos de nível e corte.
- Leia os Nomes dos Ambientes: Cada espaço é identificado por um rótulo, como “Sala”, “Quarto 01”, “Cozinha”. Isso facilita a orientação e a compreensão da distribuição dos cômodos.
- Identifique Áreas Molhadas: Texturas quadriculadas ou hachuradas em áreas como banheiros e cozinhas indicam o uso de piso cerâmico ou materiais impermeáveis, essenciais para essas zonas.
- Observe a Orientação (Norte): Uma seta indicando o Norte é fundamental para entender a insolação da casa. Saber onde o sol bate em diferentes horários ajuda a planejar o uso dos ambientes e a iluminação natural. Como ler planta baixa.
- Consulte Cortes (Se Disponível): Plantas de corte mostram a edificação como se estivesse fatiada verticalmente. Elas revelam detalhes de alturas, níveis de telhado e estrutura interna que não são visíveis na planta baixa. São essenciais para entender a volumetria e detalhes construtivos. Importância da planta de corte.

Principais Erros e Como Evitá-los
Erro 1: Ignorar a Escala. Muitas pessoas olham para a planta e acham que as medidas são literais. Se você não verificar a escala, pode ter uma noção completamente errada do tamanho real dos cômodos. Sempre procure a indicação da escala e, se necessário, use uma régua para confirmar as dimensões. Isso evita surpresas desagradáveis na hora de mobiliar ou construir.
Erro 2: Não entender a simbologia. Cada linha, círculo ou hachura tem um significado. Confundir uma parede estrutural com uma divisória ou não saber identificar um pilar pode levar a interpretações equivocadas sobre a construção. Dedique tempo para entender os símbolos básicos; a maioria das plantas inclui uma legenda explicativa.
Erro 3: Desconsiderar a orientação do Norte. A posição do sol influencia diretamente a iluminação e a temperatura dos ambientes. Ignorar a seta do Norte pode fazer com que você planeje um quarto de sol intenso em um horário inconveniente ou uma sala de estar com pouca luz natural. Sempre verifique a orientação para um uso mais eficiente e confortável dos espaços.
Dicas Extras
- Preste atenção aos detalhes: Não se prenda apenas às paredes e portas. Observe as legendas, as cotas e os símbolos. Eles contam a história completa do projeto.
- Use uma lupa (literal ou figurada): Às vezes, um detalhe pequeno faz toda a diferença. Se a planta estiver com baixa resolução, tente ampliá-la.
- Compare com o local: Se possível, visite o espaço ou um similar. Isso ajuda a visualizar as dimensões e a distribuição que você está vendo no papel.
- Não tenha medo de perguntar: Se algo não ficou claro, procure um profissional. Um arquiteto ou engenheiro pode explicar os pontos que te deixaram na dúvida.
Dúvidas Frequentes
O que são as linhas tracejadas em uma planta baixa?
Linhas tracejadas geralmente indicam elementos que não estão no mesmo plano da vista principal, como uma janela mais alta, um móvel embutido ou uma projeção. É importante observar a legenda para entender o significado específico.
Como saber a espessura das paredes?
A espessura das linhas que representam as paredes na planta baixa é um indicador. Linhas mais grossas ou preenchidas costumam representar paredes estruturais ou de alvenaria, enquanto linhas mais finas podem indicar paredes divisórias mais leves. Consultar o guia de símbolos de construção civil pode ajudar a interpretar isso.
A escala da planta baixa é sempre a mesma?
Não, a escala pode variar. Ela é definida pelo arquiteto ou engenheiro para adequar o desenho ao tamanho do papel. O importante é sempre verificar a indicação da escala na própria planta, que geralmente aparece em formato de fração (ex: 1:50) ou gráfica. Saber como calcular a escala de uma planta baixa corretamente é fundamental para entender as dimensões reais.
Conclusão
Dominar a leitura de plantas baixas abre um leque de possibilidades, seja para quem está construindo, reformando ou apenas querendo entender melhor o espaço ao seu redor. Lembre-se que a prática leva à perfeição. Continue explorando e, aos poucos, os desenhos técnicos de arquitetura para leigos se tornarão mais familiares. Explore também a diferença entre planta baixa e corte arquitetônico para ter uma visão ainda mais completa.

